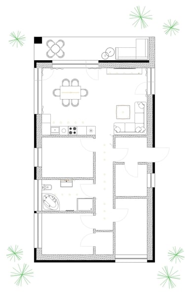
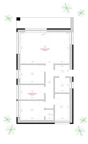
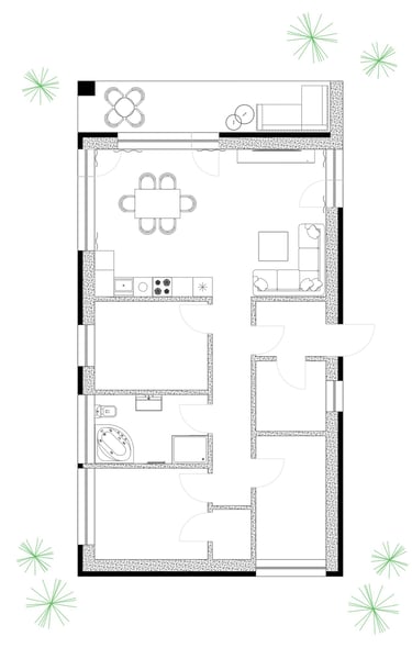
Projektuojama erdvė
41.9 m²

Baldų išdėstymo planas | Apšvietimo planas | Vizualizacijos

©Copyright 2025 MB EDESIGNATIO