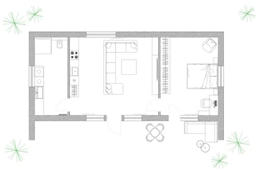
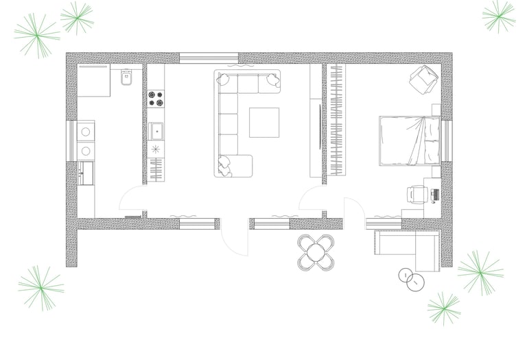
Projektuojama erdvė
52.0 m²

Baldų išdėstymo planas | Vizualizacijos

©Copyright 2025 MB EDESIGNATIO